Quadrilocale in vendita

Tarquinia, Strada Dell'Infernaccio
€ 218.000
4 locali 4 locali
161 Mq 161 Mq
2 bagni 2 bagni

Quadrilocale in vendita

Tarquinia, Strada Dell'Infernaccio

Descrizione annuncio

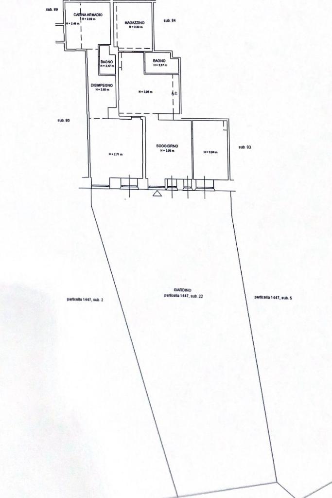
In Vendita – Splendido Quadrilocale Con Ampio Giardino Di Proprietà 161 mq commerciali Piano Terra

In un contesto tranquillo e riservato proponiamo elegante quadrilocale di 161 mq commerciali situato al piano terra, impreziosito da un grande giardino privato, ideale per chi desidera vivere gli spazi esterni.

L’immobile si presenta con una distribuzione interna moderna e funzionale:


Soggiorno luminoso con cucina open space, perfetto per momenti di convivialità.

Due camere da letto ben proporzionate e facilmente arredabili.

Ampia camera matrimoniale doppia con accesso diretto al giardino, completa di un corridoio privato che conduce a un’ulteriore stanza collegata alla matrimoniale: uno spazio ideale come cabina armadio, studio privato o area relax.

Punti di forza:

Grande giardino di proprietà, perfetto per pranzi all’aperto, area giochi, animali domestici o semplicemente per godersi la tranquillità.

Distribuzione degli ambienti ottimale, con spazi versatili e facilmente personalizzabili.

Piano terra comodo e accessibile.

Un’abitazione ideale per famiglie, per chi cerca ampi spazi o per chi ama vivere la casa in continuità con l’esterno.

Contattaci per maggiori informazioni o per fissare una visita!

Mostra tutto

Nelle vicinanze

Trasporto pubblico Trasporto pubblico
Tarquinia
Tarquinia
2,7 Km
Viale Dasti
Viale Dasti
120 m
Trasporto pubblico
190 m
Scuole Scuole
Scuola Media Statale Luigi Dasti
210 m
Università Agraria di Tarquinia
360 m
Scuola Elementare Parificata S. Lucia Filippini
540 m
Farmacia Farmacia
Farmacia via Igea
340 m
Parafarmacia Etrusca
530 m
Ospedali Ospedali
Ospedale
300 m
Ospedali
320 m
Supermercati Supermercati
Conad City
260 m
Coop
720 m
EuroSpin
1,4 Km
ingrande
1,6 Km
Negozi Negozi
Alimentari Ciuffatelli
170 m
Revolution
190 m
Negozi
230 m
La Bottega
290 m
Antichi Sapori
400 m
Bar Bar
Pepe Caffè
80 m
Bar Daria
140 m
Bar
290 m
Bar Aurelia
310 m
Impero
320 m
Ristoranti Ristoranti
Namo Ristobottega
30 m
Pizzeria Il Falchetto
130 m
Arte e Farina
130 m
Napule è
300 m
La Cadena Taperia
310 m
Mostra tutto

Caratteristiche

Rif.:
61144709
Piano:
1 di 1 (Piano terra con giardino)
Posti auto:
2
Camere da letto:
3
Arredamento:
Completo
Condizionamento:
Assente
Mostra tutto
Prezzo Prezzo
€ 218.000
Rata mutuo Rata mutuo
€ 1.027 / mese
Spese annue Spese annue
€ 0
Proponi il tuo prezzoProponi il tuo prezzo
Immobile valutato con T·Valuta

Classe Energetica

C
C
C
C
C
C
C
C
C
EP globale non rinnovabile:
46.04 kW h/m² anno
EP globale rinnovabile:
25.66 kW h/m² anno
EP invernale del fabbricato:
EP estiva del fabbricato:
Anno di costruzione:
1970
Riscaldamento:
Autonomo
Tipo impianto:
A radiatori
Tipo alimentazione:
Metano

Ti interessa visionare l'immobile?

Fissa un appuntamento  Fissa un appuntamento

Richiedi informazioni

Clicca su Leggi per aprire l'informativa
* Questi campi sono obbligatori

Calcola il tuo mutuo

Semplice e senza impegno
Anticipo

( % )
Mutuo

( % )

pochi semplici passi

inserisci i tuoi dati
Questionario completato
Grazie per aver richiesto un appuntamento senza impegno con un nostro Consulente del Credito e Assicurativo.

Hai inserito correttamente tutti i dati necessari e a breve riceverai una e-mail con un link da convalidare per inviare i tuoi dati.
Affiliato
Etrusca 24 Srl
P.zza Matteotti, 12/13 01016 Tarquinia (VT)

Il nostro staff


  • Vittorio Coccoglioniti
    Collaboratore

  • Ilaria Costanesi
    Coordinatrice

  • Marco Mecocci
    Affiliato

  • Lorenzo Sapori
    Affiliato

  • Paolo Mecocci
    Affiliato
P.zza Matteotti, 12/13 01016 Tarquinia (VT)
Zona: Tarquinia
Mostra su mappa
Affiliato
Etrusca 24 Srl
P.zza Matteotti, 12/13 01016 Tarquinia (VT)

2026 Tecnocasa Franchising S.p.A. - P. IVA 08365160152 - Via Monte Bianco 60/A 20089 Rozzano (MI). Ogni agenzia ha un proprio titolare ed è autonoma. Privacy policy | Policy utilizzo | Cookie policy