Trilocale in vendita

Tarquinia, Piazza don luigi sturzo
€ 199.000
3 locali 3 locali
128 Mq 128 Mq
1 bagno 1 bagno

Trilocale in vendita

Tarquinia, Piazza don luigi sturzo

Descrizione annuncio

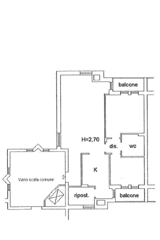
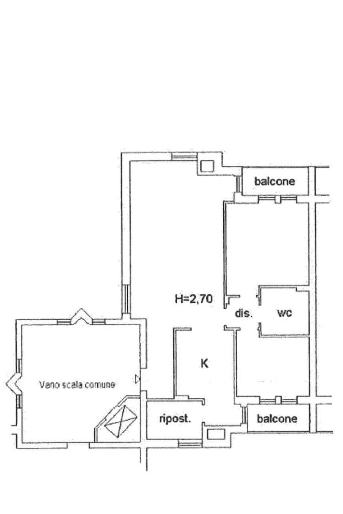
In una zona ben servita, dove tutto è a portata di mano e la vita quotidiana diventa più semplice, proponiamo in vendita un trilocale al secondo piano con ascensore, completamente ristrutturato e pronto da vivere.

L’appartamento è la soluzione ideale per chi è stanco di spazi bui, distribuzioni scomode o lavori da affrontare: qui entri e vivi, senza pensieri. La ristrutturazione recente garantisce ambienti moderni, funzionali e curati nei dettagli, pensati per offrire comfort e praticità ogni giorno.

Il vero cuore della casa è l’ampia zona giorno, uno spazio accogliente e luminoso, perfetto per la vita di famiglia, per ricevere amici o semplicemente per rilassarsi dopo una lunga giornata. La doppia esposizione assicura ottima luminosità naturale durante tutto l’arco della giornata, rendendo ogni ambiente arioso e piacevole da vivere.

La zona notte è ben separata e risolve una delle esigenze più richieste: due camere vere e funzionali. La camera matrimoniale e la cameretta hanno entrambe accesso diretto ai balconi, un valore aggiunto che regala sfoghi esterni privati, ideali per chi ama luce, aria e continuità tra interno ed esterno. I due balconi, grazie alla doppia esposizione, amplificano la vivibilità della casa e migliorano il comfort in ogni stagione.

Il bagno con doccia, moderno e ben rifinito, completa l’abitazione con uno stile attuale e pratico, perfetto per le esigenze quotidiane.

A rendere l’offerta ancora più completa ci sono le pertinenze, tra cui un posto auto, una soluzione fondamentale per eliminare lo stress della ricerca di parcheggio e aumentare la comodità della vita quotidiana.

Una casa che risolve problemi concreti – lavori, luce, spazi mal distribuiti, parcheggio – e che offre pregi reali: ristrutturazione, luminosità, balconi, ascensore e servizi sotto casa.
Una proposta ideale per famiglie, giovani coppie o per chi cerca un investimento di qualità, pronto e senza compromessi.

Contattaci per ulteriori informazioni e per fissare un appuntamento di visita!

Mostra tutto

Nelle vicinanze

Trasporto pubblico Trasporto pubblico
Tarquinia
Tarquinia
2,4 Km
Trasporto pubblico
80 m
Via Tirreno
Via Tirreno
690 m
Scuole Scuole
Scuola Elementare Parificata S. Lucia Filippini
520 m
Scuola Media Statale Luigi Dasti
940 m
Università Agraria di Tarquinia
1,2 Km
Farmacia Farmacia
Farmacia via Igea
930 m
Parafarmacia Etrusca
1,3 Km
Ospedali Ospedali
Ospedali
820 m
Ospedale
860 m
Supermercati Supermercati
Coop
630 m
EuroSpin
880 m
Conad City
890 m
ingrande
1,1 Km
Negozi Negozi
Xin Le
690 m
La Bottega
700 m
Negozi
760 m
Alimentari Ciuffatelli
1,0 Km
Revolution
1,1 Km
Bar Bar
Bar Aurelia
790 m
Pepe Caffè
940 m
Bar Daria
1,0 Km
Bar
1,2 Km
Impero
1,2 Km
Ristoranti Ristoranti
All'Olivo
560 m
La Capanna del Buttero
590 m
Pizzeria Noi del Ghetto
590 m
Pizzeria Il Falchetto
850 m
Namo Ristobottega
870 m
Mostra tutto

Caratteristiche

Rif.:
61174545
Piano:
2 di 1 con ascensore (Piano medio)
Posti auto:
1
Balconi:
2
Camere da letto:
2
Arredamento:
Assente
Mostra tutto
Prezzo Prezzo
€ 199.000
Rata mutuo Rata mutuo
€ 938 / mese
Proponi il tuo prezzoProponi il tuo prezzo
Immobile valutato con T·Valuta

Classe Energetica

Questo immobile è esente da classe energetica
Anno di costruzione:
1983
Riscaldamento:
Autonomo
Tipo impianto:
A radiatori
Tipo alimentazione:
Metano

Ti interessa visionare l'immobile?

Fissa un appuntamento  Fissa un appuntamento

Richiedi informazioni

Clicca su Leggi per aprire l'informativa
* Questi campi sono obbligatori

Calcola il tuo mutuo

Semplice e senza impegno
Anticipo

( % )
Mutuo

( % )

pochi semplici passi

inserisci i tuoi dati
Questionario completato
Grazie per aver richiesto un appuntamento senza impegno con un nostro Consulente del Credito e Assicurativo.

Hai inserito correttamente tutti i dati necessari e a breve riceverai una e-mail con un link da convalidare per inviare i tuoi dati.
Affiliato
Etrusca 24 Srl
P.zza Matteotti, 12/13 01016 Tarquinia (VT)

Il nostro staff


  • Vittorio Coccoglioniti
    Collaboratore

  • Ilaria Costanesi
    Coordinatrice

  • Marco Mecocci
    Affiliato

  • Lorenzo Sapori
    Affiliato

  • Paolo Mecocci
    Affiliato
P.zza Matteotti, 12/13 01016 Tarquinia (VT)
Zona: Tarquinia
Mostra su mappa
Affiliato
Etrusca 24 Srl
P.zza Matteotti, 12/13 01016 Tarquinia (VT)

2026 Tecnocasa Franchising S.p.A. - P. IVA 08365160152 - Via Monte Bianco 60/A 20089 Rozzano (MI). Ogni agenzia ha un proprio titolare ed è autonoma. Privacy policy | Policy utilizzo | Cookie policy