Porzione di bifamiliare in vendita

Tarquinia, Strada Bandita del Casal Nuovo
€ 259.000
4 locali 4 locali
292 Mq 292 Mq
2 bagni 2 bagni

Porzione di bifamiliare in vendita

Tarquinia, Strada Bandita del Casal Nuovo

Descrizione annuncio

Villa Bifamiliare di Recente Costruzione con Ampio Terreno e Impianto Fotovoltaico

In posizione riservata ma comoda ai servizi, proponiamo in vendita una splendida villa bifamiliare su due livelli, recentemente costruita con criteri moderni di efficienza energetica e comfort abitativo.

Grazie al cappotto termico esterno, al tetto coibentato e all’impianto fotovoltaico, l’abitazione assicura un elevato isolamento termico e ridotti costi in bollettazero sprechi, massimo comfort in ogni stagione.

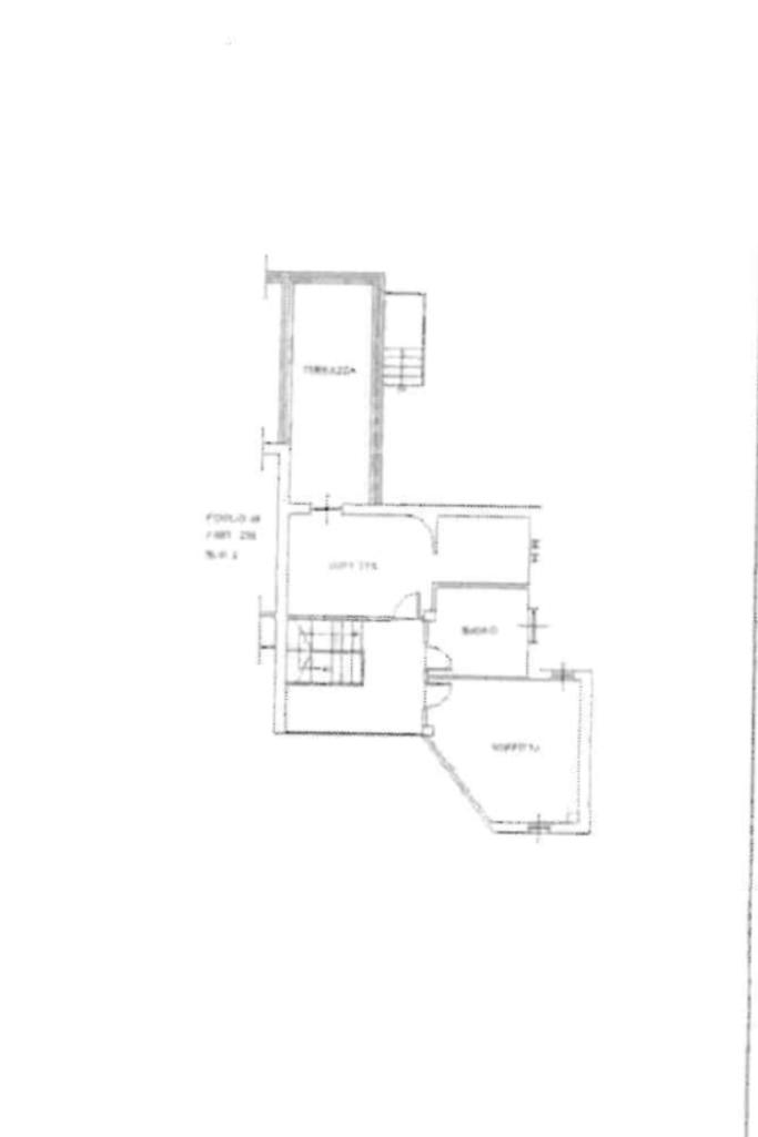
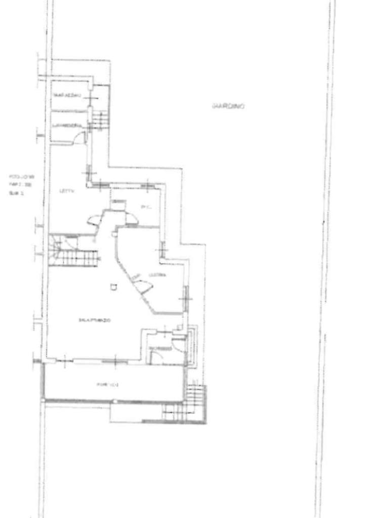
Distribuzione interna:

- Piano terra: Ampio e luminoso soggiorno, cucina abitabile separata, bagno e una comoda camera da letto matrimoniale dotata di cabina armadio.
- Piano primo: Due camere da letto, di cui una con accesso diretto a un terrazzo panoramico, e un secondo bagno.
- Piano seminterrato: Spazioso garage/magazzino e un locale tecnico, ideali per esigenze pratiche e di deposito.

Spazi esterni:
La proprietà è circondata da un terreno di circa 1,5 ettari, perfetto per chi desidera vivere immerso nel verde o ha necessità agricole e ricreative. Completa il tutto la presenza di pannelli fotovoltaici, un valore aggiunto che consente un notevole risparmio sui consumi energetici.

Questa villa è la soluzione ideale per chi cerca spazi ampi, autonomia e sostenibilità, in un contesto tranquillo ma non isolato

Mostra tutto

Nelle vicinanze

Bar Bar
Bar Gennaro
1,9 Km
Mostra tutto

Caratteristiche

Rif.:
61061826
Piano:
Terra con giardino di 2
Totale piani:
2
Box:
1
Posti auto:
2
Terrazzi:
2
Mostra tutto
Prezzo Prezzo
€ 259.000
Rata mutuo Rata mutuo
€ 1.220 / mese
Spese annue Spese annue
€ 0
Proponi il tuo prezzoProponi il tuo prezzo
Immobile valutato con T·Valuta

Altre caratteristiche

Classe Energetica

E
E
E
E
E
E
E
E
E
EP invernale del fabbricato:
EP estiva del fabbricato:
Anno di costruzione:
2005
Riscaldamento:
Autonomo
Tipo impianto:
A radiatori
Tipo alimentazione:
Metano

Ti interessa visionare l'immobile?

Fissa un appuntamento  Fissa un appuntamento

Richiedi informazioni

Clicca su Leggi per aprire l'informativa
* Questi campi sono obbligatori

Calcola il tuo mutuo

Semplice e senza impegno
Anticipo

( % )
Mutuo

( % )

pochi semplici passi

inserisci i tuoi dati
Questionario completato
Grazie per aver richiesto un appuntamento senza impegno con un nostro Consulente del Credito e Assicurativo.

Hai inserito correttamente tutti i dati necessari e a breve riceverai una e-mail con un link da convalidare per inviare i tuoi dati.
Affiliato
Etrusca 24 Srl
P.zza Matteotti, 12/13 01016 Tarquinia (VT)

Il nostro staff


  • Vittorio Coccoglioniti
    Collaboratore

  • Ilaria Costanesi
    Coordinatrice

  • Marco Mecocci
    Affiliato

  • Lorenzo Sapori
    Affiliato

  • Paolo Mecocci
    Affiliato
P.zza Matteotti, 12/13 01016 Tarquinia (VT)
Zona: Tarquinia
Mostra su mappa
Affiliato
Etrusca 24 Srl
P.zza Matteotti, 12/13 01016 Tarquinia (VT)

2026 Tecnocasa Franchising S.p.A. - P. IVA 08365160152 - Via Monte Bianco 60/A 20089 Rozzano (MI). Ogni agenzia ha un proprio titolare ed è autonoma. Privacy policy | Policy utilizzo | Cookie policy